PALMHOUSES

Aspe* · Costa Blanca (Alicante)

Villa · NB-86830
€ 637.000

Aspe* · Costa Blanca (Alicante)

Villa · NB-86830

Kenmerken

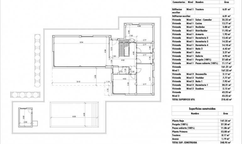
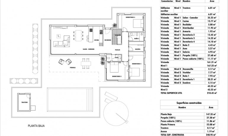
  • 248m2
  • 13.172m2
  • 4
  • 3
  • Ja
check icon Slaapkamers: 4
check icon Badkamers: 3
check icon Bebouwd: 248m2
check icon Plot: 13.172m2
check icon Energy Rating: B
check icon Zwembad: Ja
check icon Garden
check icon Private pool
check icon Gated
check icon Number of Parking Spaces: 1
check icon Near Schools
check icon Air Conditioning: Pre-Installed
check icon Under-Build / Basement
check icon Double Bedrooms: 4
check icon Terrace: 38 Msq.
check icon Location: Mountain
check icon Space
check icon Beach: 40000 Meters
check icon Bruikbare bouwruimte: 210 Msq.

Beschrijving

Plaats

Raadplegen

Responsable del tratamiento: Palm Houses, Finalidad del tratamiento: Gestión y control de los servicios ofrecidos a través de la página Web de Servicios inmobiliarios, Envío de información a traves de newsletter y otros, Legitimación: Por consentimiento, Destinatarios: No se cederan los datos, salvo para elaborar contabilidad, Derechos de las personas interesadas: Acceder, rectificar y suprimir los datos, solicitar la portabilidad de los mismos, oponerse altratamiento y solicitar la limitación de éste, Procedencia de los datos: El Propio interesado, Información Adicional: Puede consultarse la información adicional y detallada sobre protección de datos Aquí.

Economie

Bereken hypotheken
Wisselkantoor
  • Pounds: 554.509 GBP
  • Russische roebel: 554.509 RUB
  • Zwitserse frank: 582.473 CHF
  • Chinese yuan: 5.044.658 CNY
  • Dollar: 740.704 USD
  • Zweedse kroon: 6.995.534 SEK
  • De Noorse kroon: 6.908.265 NOK

Vergelijkbare woningen

Heeft u hulp nodig bij het vinden van het huis van uw dromen?

Vul het formulier in en we helpen je verder

Raadplegen
WhatsApp