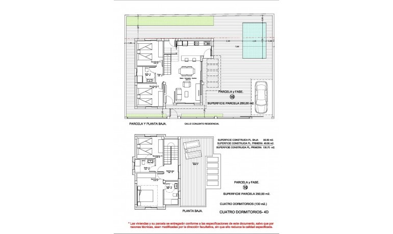
Moderne, nieuw gebouwde villa's in La Herrada Los Montesinos met privézwembad Exclusief woonproject in een rustige omgeving Deze exclusieve ontwikkeling van 16 moderne villa's, gelegen in de prestigieuze woonwijk La Herrada in Los Montesinos, biedt privacy, comfort en een uitstekende levenskwaliteit. La Herrada staat bekend om zijn rustige woonomgeving, de nabijheid van dagelijkse voorzieningen en de bevoorrechte ligging tussen de beroemde zoutvlaktes van Torrevieja en La Mata. Het is een ideale plek voor wie op zoek is naar een ontspannen en gezonde mediterrane levensstijl in het zuiden van de Costa Blanca. Eigentijds ontwerp met geoptimaliseerde binnenruimtes Elke villa heeft 130 m² goed verdeelde woonruimte verdeeld over twee verdiepingen, ontworpen om natuurlijk licht en functionaliteit te maximaliseren. De woningen zijn gebouwd op percelen van 250 m² en bieden ruime buitenruimtes die perfect zijn om te zonnebaden, gasten te ontvangen of te ontspannen bij het privézwembad. Comfortabele indeling over twee verdiepingen De begane grond beschikt over een open woonkamer met een volledig geïntegreerde keuken en directe toegang tot de tuin en het zwembad. Op deze verdieping bevinden zich ook twee slaapkamers, een complete badkamer en een praktische wasruimte. Op de bovenverdieping zijn er twee ruime slaapkamers, elk met een eigen badkamer, waarvan één en-suite. Beide slaapkamers hebben toegang tot een open privéterras van 28 m². Voor wie nog meer buitenruimte wil, is er tegen meerprijs een optioneel solarium op het dak beschikbaar. Hoogwaardige afwerking en moderne voorzieningen De villa's zijn voorzien van hoogwaardige afwerkingen, zoals badkamermeubilair, spiegels, doucheschermen en vloerverwarming in alle badkamers. Er is een voorinstallatie voor airconditioning, een gemotoriseerde toegangspoort voor voertuigen, een eigen parkeerplaats op het perceel en een afgesloten toegang tot de woonwijk via een eigen interne weg. Toplocatie dicht bij belangrijke voorzieningen en attracties Stranden van Guardamar en Torrevieja op 9 km afstand La Marquesa Golf, La Finca Golf en Vistabella Golf op minder dan 5 km afstand Luchthaven Alicante op 29 km afstand Natuurparken, zoutvlaktes, fietsroutes en wandelpaden in de omgeving Comfortabel wonen in het hart van de Costa Blanca Deze nieuw gebouwde villa's in Los Montesinos bieden de perfecte combinatie van modern comfort, een natuurlijke omgeving en uitstekende bereikbaarheid. Of u nu op zoek bent naar een permanente woning of een vakantiehuis, dit project biedt alles wat u nodig heeft om te genieten van een rustige en comfortabele mediterrane levensstijl. Neem vandaag nog contact met ons op om een bezichtiging te regelen en uw nieuwe huis in La Herrada te bemachtigen.
Vul het formulier in en we helpen je verder
Raadplegen